
小户型在装修的时候都有一个共同的“痛点”,那就是收纳空间太有限。
毕竟家里面积不大,又要宽敞明亮、又要整洁好看,还想有超多收纳空间,想同时实现,确实有点难。
不过今天给大家分享的这套小户型装修案例,既满足了屋主对大量收纳空间的需求,也满足了屋主对空间美感的要求。
这是一套89㎡的二手房两居室,屋主是一对年轻的90后夫妻,装修主要由女主负责,堪称“收纳狂魔”的女主在家里打满了柜子但视觉上却不压抑,获得了家人的夸赞和邻居的羡慕。
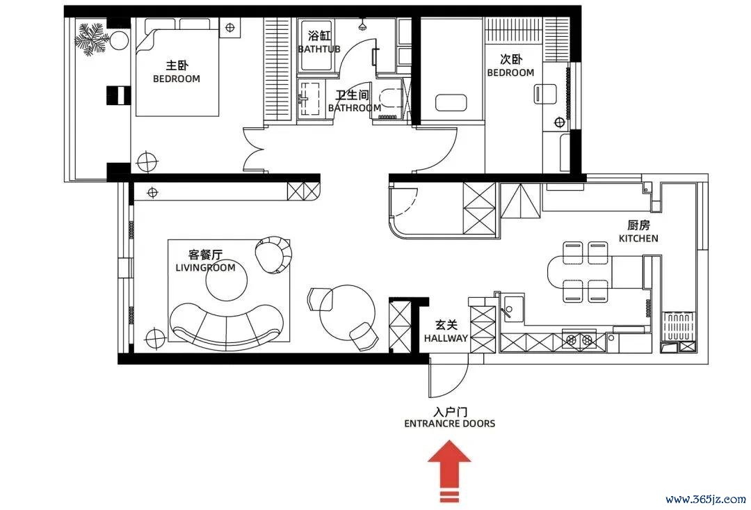
原始户型图分析:

原始户型整体比较方正,但餐厅厨房距离太远不太好用,整体的收纳空间也不够,女主有不少滑雪设备需要一个独立的储藏间收纳,卫生间也不大,放不下女主想要的浴缸;主卧阳台还有一个不能拆除的柱子,阳台与室内地面存在高度差需要解决。
平面布局图:
设计师和屋主沟通后,结合房屋特点,给室内布局做了新的规划:

①入户门对面设计储藏间;
②厨房增设岛台,叠加用餐功能;
③借用主卧扩大卫生间,增放浴缸。
在确定了平面布局后,风格上选择了女主喜欢的复古法式风,优雅精致。
玄关:

改造后的玄关门洞做了缩小,入户门右侧定制了一组鞋柜,左侧放置了全身镜,功能性很齐全。


进入室内,首先看到的就是正对入户门的储藏间外墙,设计师特意把它做成了弧形,下半部分做了马赛克墙裙,搭配极窄的复古案条,把时尚、个性、复古和精致演绎的淋漓尽致。
储藏间+过道:

储藏间是后面新加的空间,为了不让它的存在给室内带来逼仄感,设计师不仅给它做了好看的外观设计,还在顶部留出了10公分的高度作为呼吸缝,这样视觉上既不会压抑还能起到延伸效果。

储藏间的拐角墙体做了弧形处理,与之对立的是过道另一侧的电视墙转角也做了弧形处理,两者相呼应;而且屋主在空间里穿行时也更顺畅,有放大空间的效果。



储物间做了隐形门,为了让它的“隐形”效果更好,并没有选择常规定制门,而是木工现场打制,表面贴石膏板再用乳胶漆覆面,与其它墙体完全成为一个整体。
厨房:

厨房选择了黑色双开门,顶部是弧形造型,搭配银色门把手,复古感拉满。


厨房面积不小,外面还连接了一个小阳台,为了把空间利用率最大化,除了靠墙的橱柜外,设计师还在厨房中央设计了一个岛台,其实也是夫妻俩日常用餐的地方。


厨房的一侧是中厨,定制了L型橱柜放置灶台和水槽,另外一侧是水吧区主要做咖啡、简餐。
厨房外是家政区,与厨房用长虹玻璃移门隔开,既美观也可以隔绝油烟。
餐厅:

在这个并不是很大的房子里,女主选择保留两个餐厅,一个在厨房是日常用餐区,一个在客厅旁是朋友聚会时的场所。

餐桌椅是女主精心挑选的,胡桃木的材质与颜色都带着复古的气息,奶白色的小吊灯与灯盘增添了法式氛围感。

设计师并没有按照常规定制餐边柜,而是设计了一组内嵌式的壁龛柜;下面是藤编柜门的收纳柜,上面是层板+壁纸,一半收纳杂物,一半展示美好,实用和颜值俱佳。
客厅:

客餐厅采用了一体式的设计,地面是通铺的实木地板,顶面做了一体式的走边吊顶+石膏线装饰,不压层高又美观;

整个公区的墙面都是统一的奶白色乳胶漆,搭配设计感十足的家具,没有琐碎的装饰,尽显空间的干净利落。


电视墙简洁利落,定制了一组落地收纳柜和悬空电视柜,解决客厅的杂物收纳;又选择了宝格丽大理石装饰电视柜台面,木质的温润与石材的冷冽形成强烈的对比,既奢华又温柔。

沙发墙用石膏线做了墙裙设计,很有护墙板的效果;搭配蓝色的沙发,冷暖色调的碰撞让整个空间的视觉效果更显高级。

客厅没有阳台,两扇窗户都都搭配了木质的百叶窗,胡桃木的颜色很符合整个公区的基调,当光影透过百叶窗照进室内也更有治愈感。
主卧:

主卧选择了奶白色的双开门,增强了生活的仪式感。

推门而入的瞬间就能看到阳台盎然的绿意。设计师以双拱形来装饰阳台门洞,以次来弱化承重柱的存在;


拱形门洞中定制了定制了蔷薇花图案的彩色玻璃,搭配绿植营造出一种“绿野仙踪”的氛围感。

因为把空间借给了卫生间,改造后的主卧面积并不大,所以床体紧靠阳台放置;床头背景用石膏线+浅绿色乳胶漆装饰,搭配藤编床头和胡桃木的半高墙裙,非常契合整体的自然气息。


床尾墙面安装了壁挂的杂志架,上面带的抽屉可以作为梳妆台使用,小收纳柜可以放护肤品和化妆品,兼具美观与实用。
次卧:

次卧面积比较小,窗台下定制了长条书桌,侧面定制了书柜和收纳柜,还可以放下一张1.5米宽的双人床,暂时可以作为客房+书房使用,以后可以随时改造成儿童房。
卫生间:

卫生间入口在两个卧室中间,选择了与墙面同色系的法式造型门搭配长虹玻璃,避免过道的逼仄感。

卫生间内设计了浴室柜、马桶、浴缸和淋浴,满足了女主的需求;干区和湿区之间用半墙+玻璃隔断,这样不会压缩空间。

设计师选择了胡桃木的浴室柜,牛油果绿的半高墙砖、黑色极窄腰线搭配黑白格子地砖,让这个不大的空间也显得既复古时尚又清新精致。
马桶区在门后位置,壁挂马桶上面还设计了收纳柜可以用来放纸巾等囤货。
写在最后:
这套房子的面积并不大,但改造后的实用性和功能性都增强了;设计师通过专业的手法提升了屋主的居住体验感。
方道配资提示:文章来自网络,不代表本站观点。